PROJECT <<事業案内トップに戻る


この実績を印刷する prints

施工実績詳細データ

事業分野 地中事業
都道府県 東京都
施工場所 東京都足立区平野2丁目
発注者 東京都下水道局
施工年月 2008年3月 ~2008年9月
採用工法

施工内容

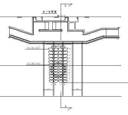
施工目的 シールド通過に伴う共同溝の仮受け(鉛直施工)及び残置中間杭の固定

施工数量 斜め施工(立坑内より)φ2000mm 114m(48本)

     鉛直施工 φ1600mm 165m(12本)

斜め施工状況(立坑内より施工)

鉛直施工状況

施工図


採用工法

TGG 高松コンストラクショングループ